АН ''Домофон'' предлагает к продаже светлую, уютную 3 комнатную квартиру в центре левого берега.
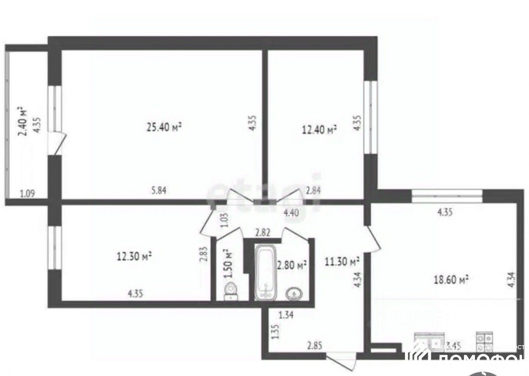
Квартира очень теплая, не угловая. Квартира 84 кв м и имеет продуманную планировку: все комнаты изолированы, одна из комнат имеет площадь 25 кв м и выход на лоджию с шикарным видом на город, светлая просторная кухня площадью 18,6 кв м, сан. узел раздельный.
Окна выходят на 2 стороны.
Новым собственникам останется кухонный гарнитур с встроенной техникой.
Закрытый, просторный тамбур на 3 квартиры. Чистый ухоженный подъезд и спокойные, доброжелательные соседи. Так же имеется своя кладовая.
Инфраструктура района разработана с учетом всех потребностей современного человека, в пешей доступности находятся образовательные учреждения -сады, школы, гимназия, лицей, медицинские центры Максимед, крупнейшие торговые центры Мега, Komarova Plaza, Магнит экстра.
Транспортная доступность обеспечивается развитой сетью общественного транспорта (после реконструкции установлены 15 современных остановочных комплексов).
Один взрослый собственник.
Без обременений.
Покажем в любое удобное для вас время.
Номер объекта: #1/537415/24298








































