**Предлагаем вашему вниманию отличную, светлую квартиру в перспективном месте Ленинского округа, мкр. Московка-2!**
Эта уютная 3-комнатная квартира расположена по адресу: г. Омск, ул. Моторная 11. Она станет идеальным домом для вашей семьи!
Особенности квартиры:
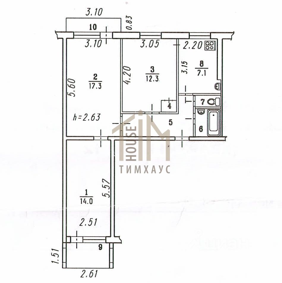
- **Общая площадь:** 64 м², **Жилая площадь:** 44 м², **Площадь кухни:** 7.1 м².
- **Этаж:** 3 (удобное расположение!).
- **Состояние:** хорошее заходи и живи!
Комфортная и востребованная планировка квартиры включает просторную прихожую, вместительную кухню, уютную гостиную и две светлые спальни. Окна и лоджия остеклены ПВХ и ориентированы на восток и запад, что обеспечивает отличное естественное освещение в течение всего дня. Лоджия и дополнительный балкон идеальное место для утреннего кофе и вечерних посиделок с друзьями.
Санузел совмещенный, облицован кафелем, что добавляет удобства в повседневной жизни. Входная зона включает закрытый тамбур на две квартиры, чистый и ухоженный подъезд с новым лифтом. Доброжелательные соседи создают атмосферу дружелюбия и уюта.
**Придомовая территория** предлагает современную детскую площадку и множество парковочных мест, что особенно важно для семей с детьми!
Развитая инфраструктура района: в непосредственной близости находятся школы (108, 107 и 99), детские сады (15, 351, 317 и 349), гипермаркет ''Лента'', новый Арт-Бассейн с тренажерным залом, ТЦ ''Гулливер'' и множество продуктовых магазинов, аптек и банков. Все необходимое для комфортной жизни рядом!
Удобная транспортная развязка позволяет быстро добраться во все районы города. Кроме того, с квартирой возможна покупка капитального, кирпичного гаража недалеко от дома.
Звоните в любое время по любым вопросам! Не упустите возможность стать владельцем этой замечательной квартиры!










































