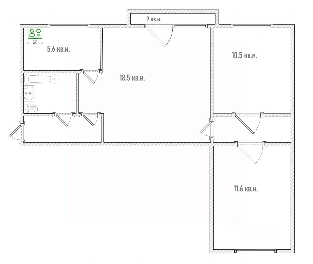
Пространство для всей семьи. Здесь ваши дети найдут собственные уютные комнаты — две изолированные спальни по 11 м² идеально подойдут и для малышей, и для подростков. Гостиная площадью 18,5 м² с выходом на балкон создаст место, где вся семья сможет собираться вместе, отдыхать и играть. Благодаря комнатам на две стороны квартира наполнена светом и свежим воздухом, которые так важны для здоровья и настроения.
Свобода от суеты и безопасная среда. Квартира выходит окнами во двор, где ваши дети смогут гулять под присмотром. Несмотря на близость к оживлённым улицам, двор тихий — идеальное место для спокойных прогулок и игр. Остановка транспорта в нескольких шагах от дома позволяет быстро доехать в любую часть города, сохраняя баланс между активной городской жизнью и спокойствием семейного очага.
Возможность создать дом своей мечты. Площадь 54,6 м² ждёт вашего творческого подхода. Ремонт здесь — шанс воплотить все идеи для комфортного и функционального пространства, учитывая ваши нужды и предпочтения. Кладовая поможет организовать хранение детских вещей, игрушек и сезонных предметов, освобождая жилые комнаты для жизни.
Все нужное под рукой. Рядом находятся магазины с продуктами, а для развития детей — молодежный центр ''Химик'' и театр-студия им. Ермолаевой. Это отличное место для творческого и активного досуга всей семьи, где каждый найдёт что-то интересное. Выбирая этот дом, вы выбираете удобство городской жизни без компромиссов по комфорту.
Доступная цена, возможности для семьи. Стоимость этой квартиры сравнима с ценой на однокомнатную в том же районе — это выгодное решение для семьи, которая хочет жить вместе, а не в тесноте. Программа ипотечного кредитования или покупка за наличные открывают путь к собственному пространству, где дети вырастут счастливыми, а родители — спокойными за их будущее.
Номер объекта: #1/537351/24613

































