Срочно. В связи с переездом в Санкт-Петербург.
Если Вы хотите жить в городской благоустроенной квартире в районе с развитой инфраструктурой, но с большей приватностью и комфортом, наслаждаясь тишиной и живописными пейзажами за окном собственного сада ЭТО ОНО!
Продаём:
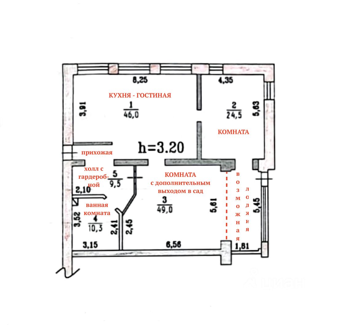
1.просторная уютная трёхкомнатная квартира общей площадью 139.3 кв. м, с высокими потолками, полностью готовая к проживанию на высоком первом этаже,
2.два собственных капитальных гаража на придомовой территории,
3.собственный земельный участок,
4.закрытая придомовая территория в общем пользовании жильцов с беседкой, мангалом, скамейками для отдыха, детской площадкой,
5.Невысокая плата за коммунальные платежи, своё ТСЖ.
Местоположение:
На Левобережье Омска, в коттеджном поселке Долина Нищих, по адресу:
ул. 4-я Солнечная, д. 31.
- Удобные подъездные пути
- Хорошая асфальтированная широкая дорога
- 7 минут ходьбы до конечной остановки пос. Солнечный общественного транспорта: 22 маршрута (прямые маршруты в любой район города)
- развитая инфраструктура района
О доме:
- Добротный, полностью кирпичный (толщина наружных стен в 3,5 кирпича), с фасадом из металлического сайдинга, был возведен в 2007 году по индивидуальному проекту. Дом на сваях. Перекрытия ж/б плиты. Хорошая звукоизоляция.
- Имеет переменную этажность (3-4 этажа). Всего в доме 14 квартир, площадью от 140 до 150 кв. м.
- Все коммуникации центральные: вода, канализация, электричество, газ.
- В подвальном помещении дома предусмотрены ячейки для хранения.
- просторная входная группа, где удобно можно разместить коляски, велосипеды.
Земельный участок:
- Земельный участок площадью 5456 кв.м. находится в общей долевой собственности граждан, по 1/14 доли в собственности у каждой квартиры (права собственности зарегистрированы в Росреестре),
- За каждой квартирой фактически закреплена определенная территория,
- Часть земельного участка находится в общем пользовании всех жильцов
(зона парковки, детские площадки, беседка, мангал, прогулочные дорожки со скамейками).
О КВАРТИРЕ:
Просторная, светлая, ориентирована на две стороны: восток и юг. С качественным дизайнерским ремонтом.
Квартира имеет индивидуальную планировку, которую при желании или необходимости можно видоизменить: количество окон позволяет добавить две полноценные комнаты.
Панорамные окна и дополнительный выход в собственный сад делает эту квартиру ещё более привлекательной:
утренний кофе, занятия йогой, вечерний отдых за чашечкой чая в саду, на свежем воздухе тишина, единение с природой, наполнят Вас гармонией и красотой.
Квартира станет вашим оазисом, где вы сможете по-настоящему расслабиться, погрузившись в атмосферу тепла и уюта.
Чистая продажа в связи с отъездом. Два взрослых собственника. Без обременений. Законная планировка. Подходит под ипотеку.
Кухонный гарнитур, вся встроенная мебель, светильные приборы, шторы, два гаража и ячейка в подвале покупателю в подарок!



































































































