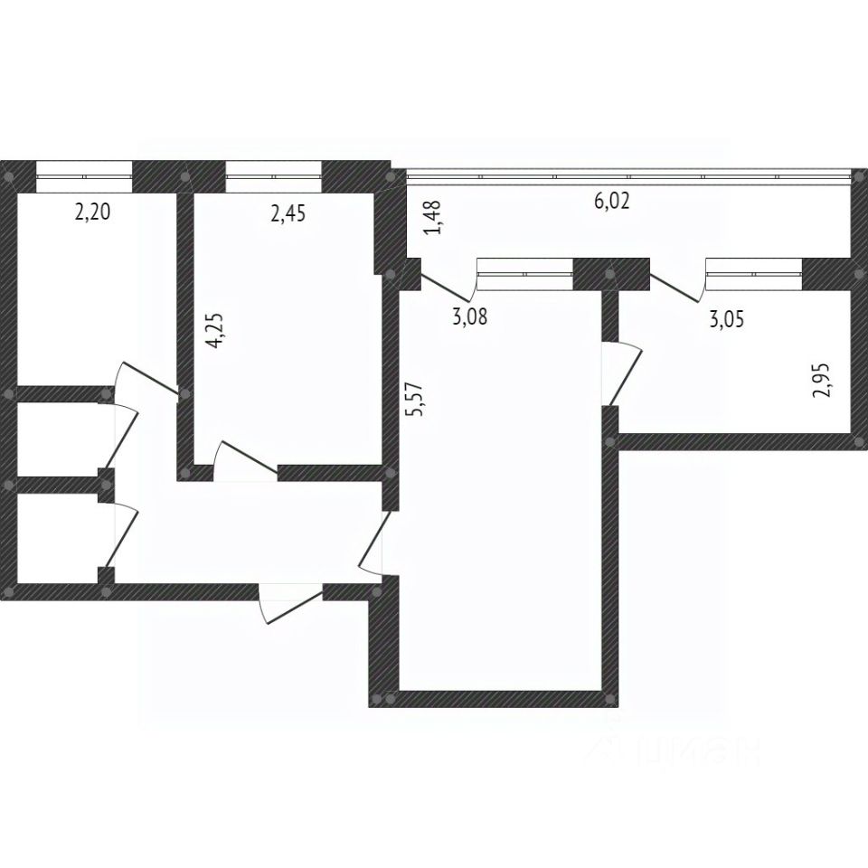
Продается трехкомнатная квартира в панельном доме 1962 года постройки, отличающемся надежными стенами, отличной тепло- и звукоизоляцией. Объект расположен на третьем этаже пятиэтажки, что обеспечивает оптимальный баланс между хорошим видом и отсутствием зависимости от лифта. Квартира имеет выгодную планировку с изолированными комнатами, что создает условия для комфортного проживания семьи или пары. Помещения выполнены в аккуратном косметическом ремонте с нейтральной отделкой, готовы к заселению. Кухня оборудована функциональной мебелью и газовой плитой, что является практичным решением для домашней готовки. Совмещенная санузел облицован качественной плиткой в светлой гамме. Из окон спален открывается спокойный вид во внутренний двор с детской игровой зоной. Придомовая территория благоустроена: здесь есть открытая парковка для автомобилей и спортивная площадка для активного отдыха. Транспортная доступность и развитая инфраструктура района делают это предложение особенно привлекательным для повседневной жизни. Рассматриваются различные варианты расчетов, включая ипотечное кредитование.
Код пользователя: 184564
Номер в базе: 11684306

































































