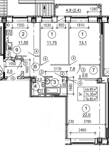
Продаётся 3-комнатная квартира в строящемся доме (Дом 8), срок сдачи: I-кв. 2026, общей площадью 76.85 кв.м., на 6 этаже. Новый жилой дом от застройщика ''Завод ЖБИ 7'' расположен по адресу: г. Омск, ул. 8-я Пролетарская, 8.
| Этаж | 6/8 |
| Площадь общая | 76.8 м² |
| Площадь жилая | не указано |
| Площадь кухни | не указано |
| Планировка | не указано |
| Санузел | не указано |
| Балкон | нет |
| Состояние/ремонт | не указано |
| Покрытие пола | не указано |
| Материал окон | не указано |
| Входная дверь | не указано |
| Вид из окон | не указано |
| Угловая | не указано |
| Домофон | не указано |
| Счётчики воды | не указано |
| Тип дома | не указано |
| Материал дома | кирпичный |
| Новостройка | да |
| Срок сдачи | 1-й квартал 2026 года |
| Высота потолка | 270 |
| Интернет | не указано |
| Лифт | не указано |
| Мусоропровод | не указано |
| Парковка | не указано |
Продаётся 3-комнатная квартира в строящемся доме (Дом 8), срок сдачи: I-кв. 2026, общей площадью 76.85 кв.м., на 6 этаже. Новый жилой дом от застройщика ''Завод ЖБИ 7'' расположен по адресу: г. Омск, ул. 8-я Пролетарская, 8.
Чистая продажа

