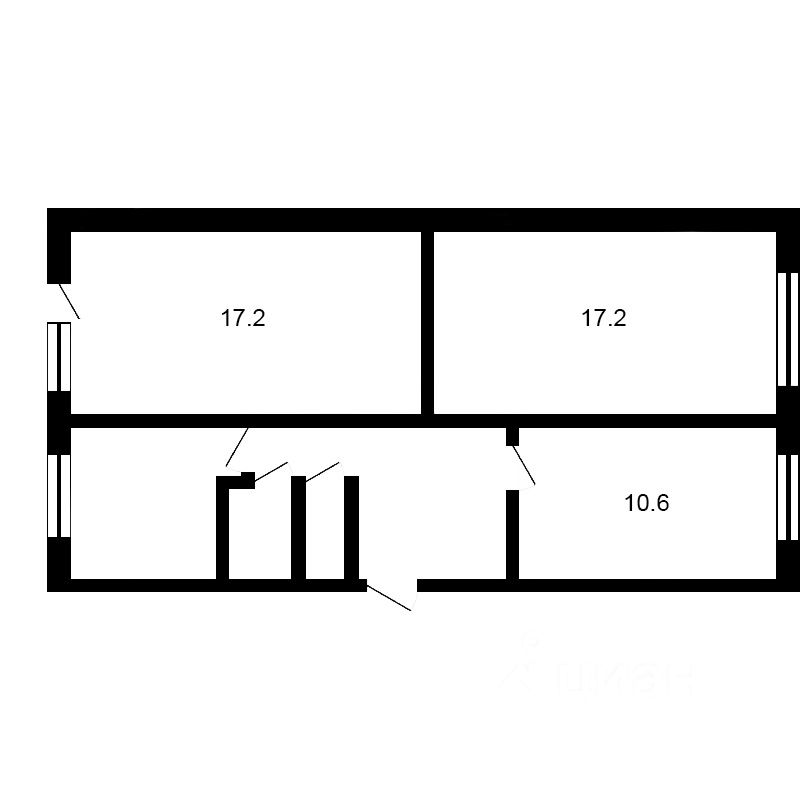
Продается уютная 3-комнатная квартира площадью 61 кв. м, расположенная на 5-м этаже 5-этажного дома. Год постройки — 1982. Жилая площадь составляет 40 кв. м, а площадь кухни — 6.5 кв. м. Высота потолков — 2.5 метра. Из окон открывается вид как во двор, так и на улицу. Квартира идеально подойдет для семьи.
В квартире сделан косметический ремонт, поэтому можно сразу заехать и жить. Планировка удобная и функциональная, все комнаты изолированные. В квартире есть один санузел и балкон, где можно наслаждаться утренним кофе или вечерним отдыхом.
Дом находится в хорошем состоянии, рядом предусмотрена наземная парковка для вашего автомобиля, поэтому вы всегда найдете место.
Район обладает развитой инфраструктурой: рядом есть школы и детские сады, что удобно для семей с детьми. Также поблизости находятся магазины, где можно совершать ежедневные покупки.
Квартира продается без обременений, возможна покупка в ипотеку. Все документы готовы к сделке.
Приглашаем вас на просмотр, чтобы вы могли лично убедиться в достоинствах этой квартиры. Записывайтесь на удобное для вас время!
































































