Предлагаем к продаже трехкомнатную квартиру в тихом районе Нефтяников ( мкр Заозёрный).
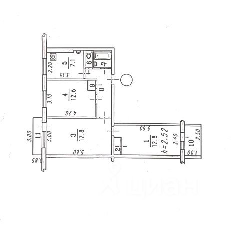
Квартира расположена на седьмом этаже девятиэтажного панельного дома с комнатами (17,8 ,12,8 , 12,6 ) кв.м. , построенного в 1970 году. Общая площадь составляет 60,1 кв. м., и кухней площадью 7,1кв. м.
Окна выходят как во двор, так и на улицу, что обеспечивает хорошее естественное освещение в течение всего дня.
Квартира требует ремонта по вашему бюджету и вкусу. Произведена замена окна на кухне.
Установлены приборы учёта на воду и газ. Поверка произведена.
Планировка удобная и функциональная, что позволит вам комфортно разместить всю необходимую мебель и технику. В квартире раздельный санузел. Имеется лоджия и балкон.
Установлена качественная входная дверь. Доброжелательные и отзывчивые соседи. Во дворе детская площадка. Парковка во дворе , поэтому вы всегда сможете найти место для своего автомобиля.
В шаговой доступности находятся школа 46 и детский сад 204, что идеально подойдет для семей с детьми. Также рядом есть магазины, где можно приобрести все необходимые товары. Удобное транспортное сообщение позволяет быстро добраться до любой точки города.
Приглашаем вас на просмотр, чтобы убедиться в привлекательности этого предложения. Записывайтесь на удобное для вас время и приезжайте оценить все плюсы этой квартиры!
Чистая продажа ! Квартира без долгов и обременений !
Живите, где хотите! С агентством недвижимости Элит Сити!


































