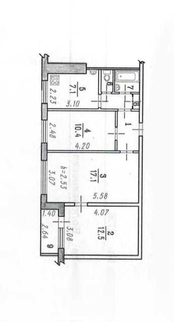
Продается на чистой продаже уютная 3-комнатная квартира в Омске на Кемеровской улице, 2. Общая площадь жилья составляет 56 кв. м, из которых 30 кв. м жилая площадь, а кухня занимает 7.5 кв. м. Квартира расположена на 4 этаже 9-этажного панельного дома, построенного в 1971 году. Высота потолков 2.5 метра. Окна выходят на реку Иртыш, обеспечивая прекрасный вид из окна.
В квартире выполнен косметический ремонт. Просторные и светлые комнаты предлагают комфортное проживание. Санузел раздельный, что практично для ежедневного использования. В квартире есть лоджия, где можно наслаждаться свежим воздухом и видом на Иртыш.
Дом в хорошем состоянии, оборудован пассажирским лифтом, что особенно удобно для семей с детьми или пожилых людей. Возле дома предусмотрена наземная парковка, поэтому вы всегда найдете место для своего автомобиля.
Район благоустроен и имеет развитую инфраструктуру. В шаговой доступности расположены школы и детские сады, что удобно для семей с детьми. Магазины и другие объекты инфраструктуры находятся рядом, что позволяет сэкономить время на повседневные дела.
Квартира продается по договору купли-продажи. Юридически чистая, без обременений, что гарантирует безопасность сделки. Возможна покупка в ипотеку.
Приглашаем вас на просмотр! Записывайтесь, чтобы оценить все достоинства этой квартиры лично. Это отличный вариант для комфортного проживания в спокойном районе.



























