Продается квартира в ЖК ''Золотые купола'' общей площадью 151 кв.м
Трех комнатная квартира с двумя лоджиями и террасой.
Престижное расположение: близость к ключевым объектам инфраструктуры, культурным достопримечательностям и деловым центрам.
Рассмотрим обмен на автомобиль или квартиру с вашей доплатой.
Дом кирпичный, толщина стен 2,5 кирпича, перегородки - кирпичные.
На площадке расположена только ЭТА квартира!
Планировка - шикарная:
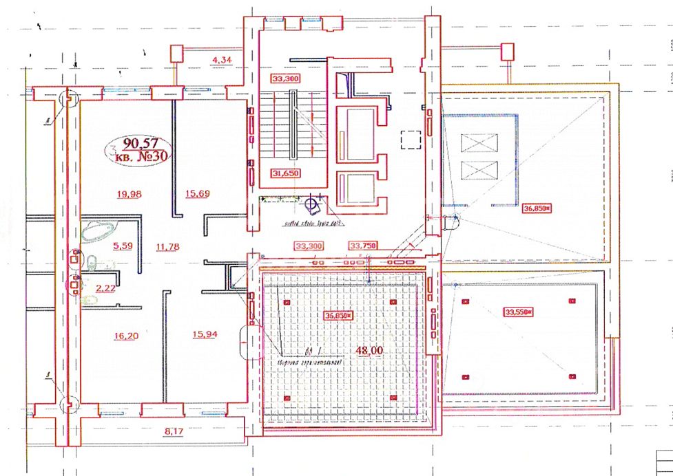
просторная кухня-гостиная - 19,98 кв.м
комнаты - 15,69 кв.м, 16,2 квм и 15,94 кв.м
просторный холл - 11,78 кв.м
два сан узла 5,6 кв.м и 2,2 кв.м
две лоджии - 4,34 кв.м и 8,17 кв.м
собственная терраса - 48 кв.м
Квартира представлена без ремонта, это дает вам возможность воплотить свои дизайнерские идеи и создать интерьер на свой вкус.
В доме 2 лифта, есть наземная парковка.
Дом находится в исторической части города.
Район с развитой инфраструктурой и прекрасной транспортной доступностью
Дом введен в эксплуатацию. Документы готовы к сделке.
Легко и безопасно купить!
Гарантируем безопасную сделку, т.к. юридически чистый объект-проверено юридическим департаментом Самолет плюс.
Без долгов и обременений.
Помогу оформить ипотеку на покупку недвижимости по ставке от 12.25%.
Возьму вашу квартиру в продажу в обмен на эту квартиру. Такие варианты уходят мгновенно! Звоните сейчас, чтобы посмотреть и принять решение!
Также можем вам предложить другие планировки от 84 кв.м до 153,5 кв.м (с лоджиями террасами)
и просто уникальную и эксклюзивную квартиру-пентхаус с огромной террасой (100 кв.м)
Звоните прямо сейчас, чтобы узнать больше и забронировать просмотр!
Арт. 127515496

















