0

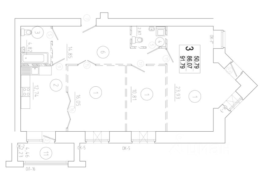
3-комнатная квартира, 91.8 м²
ул. Ю.М.Нагибина

Новостройка. 
Жилой комплекс «Дачный»
12 893 000 ₽
140 447 ₽ за м²

Характеристики квартиры

Этаж6/8
Площадь общая91.8 м²
Площадь жилаяне указано
Площадь кухнине указано
Планировкане указано
Санузелне указано
Балконнет
Состояние/ремонтне указано
Покрытие полане указано
Материал оконне указано
Входная дверьне указано
Вид из оконне указано
Угловаяне указано
Домофонне указано
Счётчики водыне указано

Характеристики дома

Тип домане указано
Материал домакирпичный
Новостройкада
Год постройки2024
Высота потолка300
Интернетне указано
Лифтне указано
Мусоропроводне указано
Парковкане указано

Описание

Квартира в жилом комплексе ''Дачный'', расположенном в экологически благоприятном районе города, удаленном от основных магистралей. Комплекс сочетает комфорт городской жизни и тишину загородной среды.

Основные характеристики и информация о квартире:

Состояние: черновая отделка

Планировка: свободная, возможна любая перепланировка в рамках законодательства

Пол: песчано-цементная стяжка

Отопление: горизонтальное, радиаторы установлены

Коммуникации: индивидуальные счетчики горячей и холодной воды (ГВС/ХВС)

Материал стен: кирпич

Инфраструктура: в шаговой доступности магазины, школы, детские сады, зоны отдыха

Готовы ответить на любые вопросы по телефону.


Чистая продажа

Динамика цен

Найти похожие варианты

Также ваc может заинтересовать