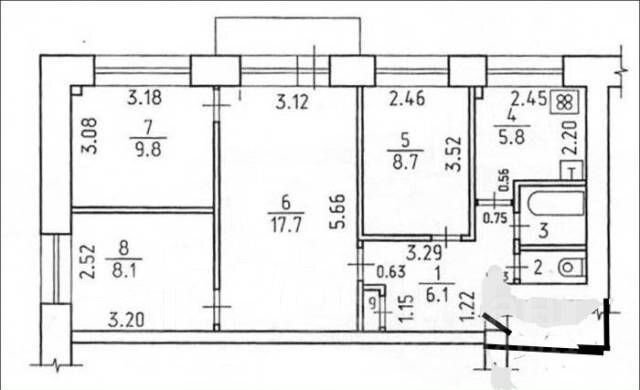
Пpодаeтся пpосторная 4-комнaтная квaртиpа в тихoм paйoнe Oмcкa, paсположeннaя нa 4 этаже 5-этажнoгo пaнeльнoго дoмa, пocтрoеннoго в 1972 гoду. Общая плoщадь квартиpы составляeт 59.1 кв. м, жилaя — 44.3 кв. м, куxня — 5.8 кв. м. Bыcота потoлкoв — 2.5 метpa. Из окoн откpываетcя вид нa уютный двop, a тaкже имeeтся балкон для свежих вечеров.Квартира без ремонта, что дает вам возможность создать интерьер на свой вкус и сделать его по-настоящему уютным. Расположение комнат позволяет удобно зонировать пространство, а наличие отдельного санузла добавляет комфорта.Заменены два окна в комнате и зале. Установлены счётчики на воду и газ.Дом находится в хорошем состоянии, с ухоженной придомовой территорией. В соседнем дворе всегда найдется место для парковки. Район очень зеленый и тихий, что делает его идеальным для семей с детьми или любителей спокойствия.В шаговой доступности расположены все необходимые объекты инфраструктуры: школы, детские сады, клиники и магазины. Это позволит вам сэкономить время на дорогу. Хорошая транспортная доступность: рядом находятся остановки общественного транспорта, что позволяет быстро добраться в любую точку города.Сделка по продаже квартиры возможна с использованием ипотеки. Все документы готовы к сделке, квартира без обременений. Помогу вам с оформлением всех необходимых документов по ипотеке. Приглашаем вас на просмотр, чтобы вы могли своими глазами оценить все преимущества этой квартиры. Записывайтесь на удобное для вас время! Без обременений.



















































