Эффективное агентство недвижимости Rielt.Pro предлагает к покупке 4комнатную квартиру в панельном доме в тихом и зеленом квартале Кировского административного округа Омска.
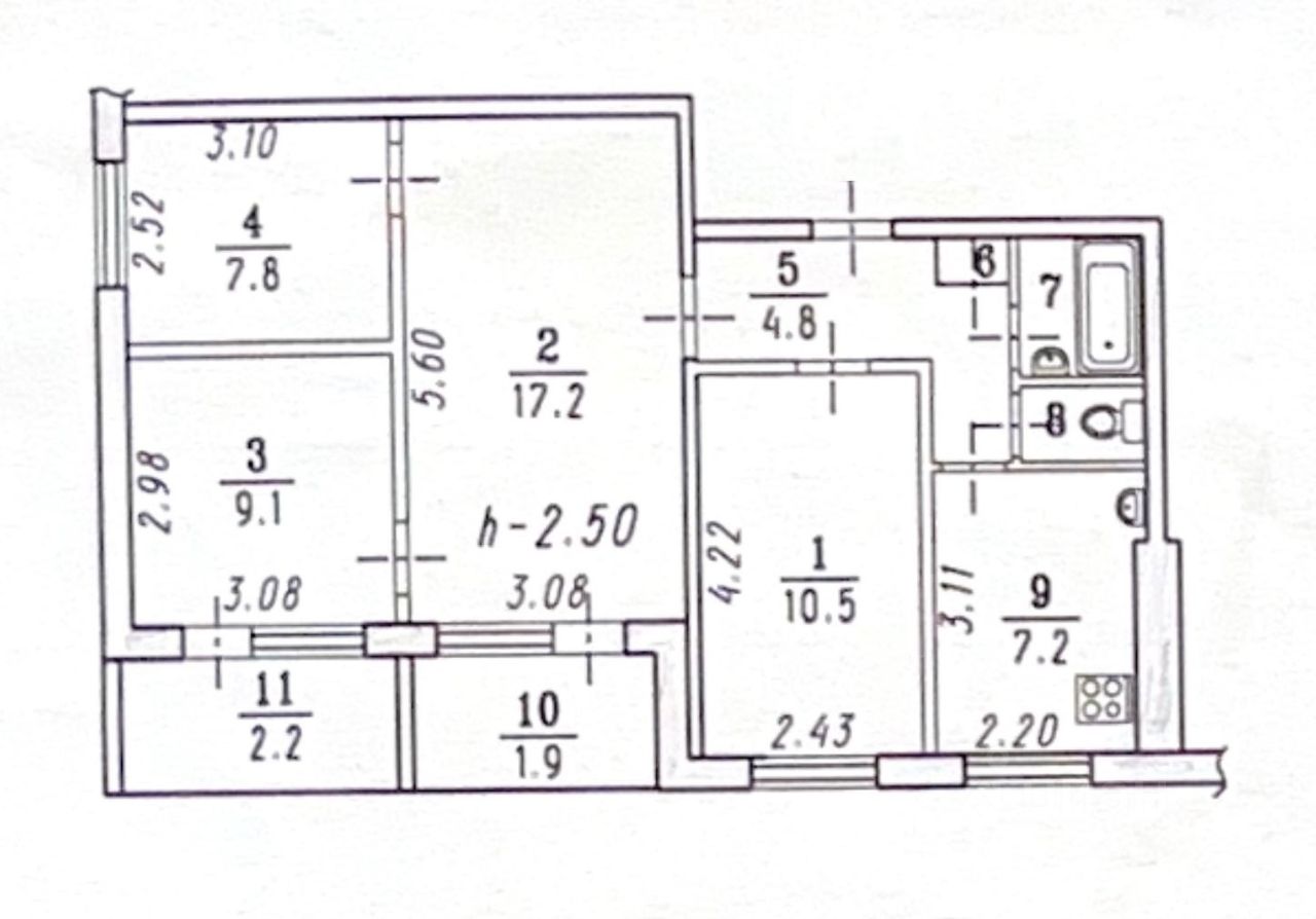
ПЛАНИРОВКА И МЕТРАЖ.
Функциональная планировка: кухня, четыре смежноизолированные комнаты, коридор, совмещённый санузел, две лоджии, которые при желании можно изолировать под каждую жилую комнату, суммарная жилая площадь комнат — 44,6 м², что позволяет без стеснения разместить зоны отдыха, детские, кабинет и хранение.
ВОЗМОЖНОСТИ ПЕРЕПЛАНИРОВКИ
Квартира ориентирована на две стороны дома, что даёт естественный свет в течение дня и открывает сценарии трансформации: можно реализовать современную евротрёшку с просторной кухнейгостиной или сохранить текущую конфигурацию для максимальной приватности комнат без потери функционала.
ДОПОЛНИТЕЛЬНОЕ ПРОСТРАНСТВО
Две большие лоджии не включены в общую площадь квартиры, но играют роль полноценного дополнительного пространства: организуйте зимний сад, мастерскую, зону хранения сезонных вещей или отдельные рабочие места — редкое преимущество для квартиры такого формата.
ДОМ И ТЕРРИТОРИЯ
Дом, подъезд и придомовая территория после капитального ремонта: обновлены ключевые элементы общего имущества, улучшены подъезд и придомовая территория.
ЛОКАЦИЯ И ИНФРАСТРУКТУРА
Рядом детский сад 25, лицей 145 с высоким образовательным уровнем, что ценно для родителей школьников, детская поликлиника 4 — во дворе, что экономит время и снижает бытовую нагрузку.
ПРИРОДА РЯДОМ
В шаговой доступности легендарный пруд Кирпичка — локальная зона отдыха жителей КАО с прогулочными маршрутами и богатой городской фауной, место притяжения для семейных выходных, утренних пробежек и прогулок у воды.
ТРАНСПОРТНАЯ ДОСТУПНОСТЬ
Удобная транспортная развязка КАО: быстрый выезд на ключевые магистрали левобережья, что позволяет добираться до разных районов города примерно за 15 минут в стандартный трафик и планировать поездки без длительных пересадок.
Звоните — организуем оперативный показ.





































































