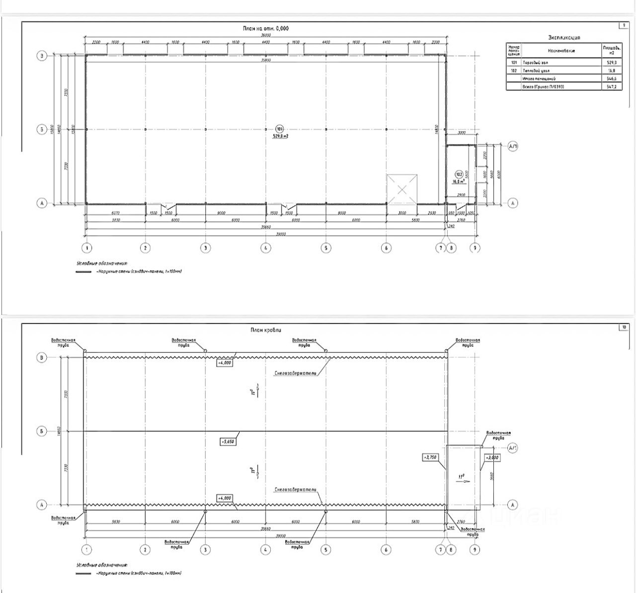
Сдаётся в аренду коммерческое помещение (531 кв. м) в новом здании!
Расположение: посёлок Магистральный (деревня Зелёное поле) у дороги — широкий подъезд, возможен въезд большегрузов.
Ключевые параметры:
высота потолков 4,5 м,
материал стен: пожаростойкие сэндвичпанели,
теплый пол (плитка или беспылевой, по желанию арендатора)
три въездные группы,
отдельная котельная (отопление входит в стоимость аренды)
подведены: вода, электричество, септик,
большая парковочная зона,
возможность разделения площади,
остановка общественного транспорта в непосредственной близости,
густонаселённый посёлок, высокий трафик,
идеально подходит для торговой деятельности
Долгосрочная аренда.
В стоимость аренда входят расходы на отопление, остальные коммунальные расходы арендатор оплачивает отдельно
Ввод в эксплуатацию — июнь 2026 года.
Звоните, обсудим детали!











