Цена снижена, пока, интересующий нас вариант не продан.
Продается просторная и по-настоящему уютная 3-комнатная квартира.
О КВАРТИРЕ И ДОМЕ: Заезжай и Живи!
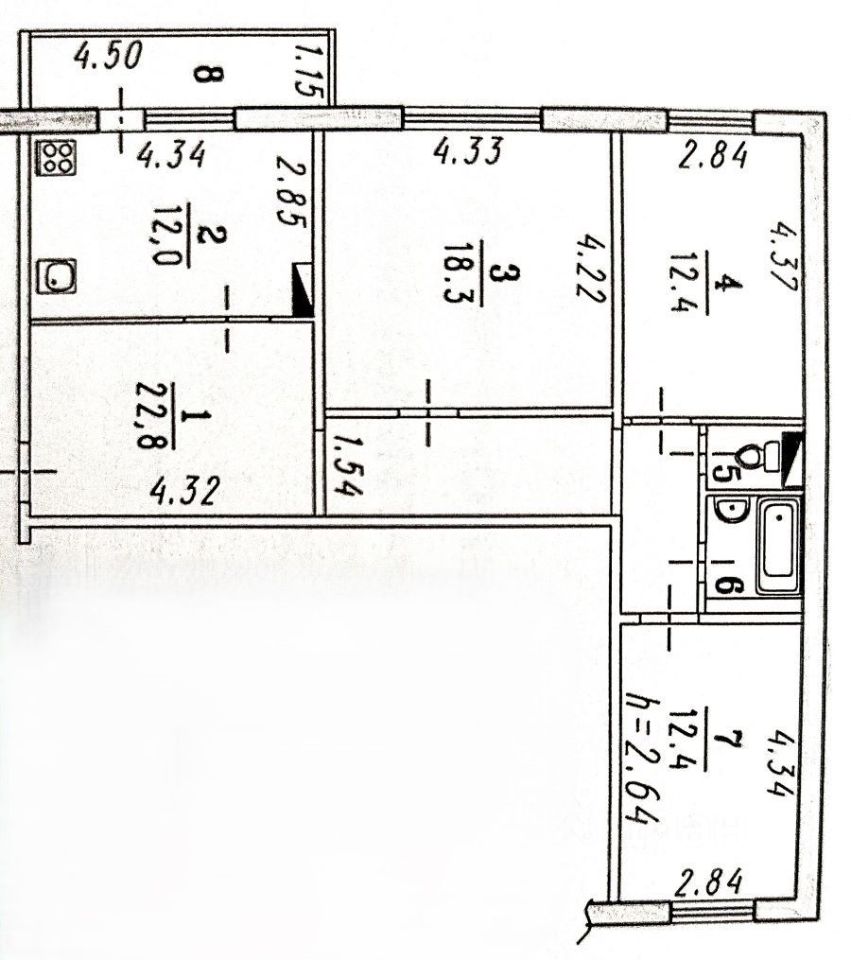
• Площадь: Общая 81.8 м² + дополнительная утепленная лоджия 5 м² с теплым полом.
• Планировка: Функциональная ''распашонка'' на 3 этаже 7-этажного панельного дома (северного исполнения, декабрь 2004 г. постройки) окна выходят на две стороны, во двор, обеспечивая тишину и свет.
• Исторический статус: Квартира в одной семье со дня постройки это гарантия юридической чистоты! Никаких перепланировок, залогов, обременений, подходит под ипотеку!
• Тепло и комфорт: Квартира очень теплая. Установлены деревянные стеклопакеты, межкомнатные деревянные двери, натяжные потолки. Отопление по приборам учета тепловой энергии платежи значительно ниже городских!
• Функционал:
• Кухня 12 м²: Встроенный кухонный гарнитур из НАТУРАЛЬНОГО дерева, встроенная посудомоечная машина BOSCH.
• Лоджия: Выход из кухни, полностью застеклена, утеплена и отделана вагонкой из дерева, с теплым полом!
• Коридор: Просторный шкаф-купе для удобного хранения.
• Санузел: Установлен 50-литровый водонагреватель (горячая вода всегда!), счетчики холодной и горячей воды.
• Безопасность: Дом по периметру оснащен видеокамерами.
• Обслуживание: Отличная работа ТСЖ ''Полет'' платежи за ЖКХ ниже городских тарифов! Имеется пассажирский лифт.
ИНФРАСТРУКТУРА ДЛЯ ЖИЗНИ БЕЗ ЗАБОТ: Всё в шаге от дома!
• Детский рай: Детские площадки прямо во дворе под окнами дети всегда под присмотром! Рядом хоккейная коробка, теннисный корт, баскетбольная площадка.
• Образование: В шаговой доступности городские детские сады, частный сад во дворе соседнего дома. Через дорогу скоро откроется новая 88 гимназия! Школа 40 всего в 10 минутах ходьбы.
• Здоровье: Взрослая и детская поликлиники прямо через дорогу.
• Покупки и досуг: Магазин ''Ярче'', кулинария, уютное кафе ''Элефант'', ателье, парикмахерские, пункт выдачи Ozon всё необходимое рядом.
• Культура: В 5 минутах от дома БУК ''Омский Драматический Театр ''Галёрка''.
• Автомобилистам: Бесплатные парковочные места , а также Недорогая автостоянка и автомойка в 30 метрах от дома!
• Транспорт: Отличная транспортная развязка! Все виды транспорта (автобус, троллейбус, трамвай, маршрутки). До остановки ''Полет'' 5 минут, до ''2 МСЧ'' 2 минуты. Добирайтесь в любую точку города быстро и удобно!
Приглашаем на просмотр!



























































































